
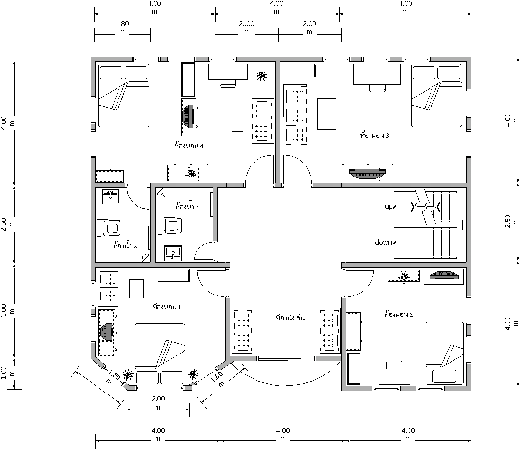
แปลนบ้าน
บ้านทุกหลังนั้นก่อนที่จะก่อสร้างเป็นบ้านสวยๆได้ จะต้องทำการออกแบบแปลนบ้านเพื่อเป็นโครงร่างในการก่อสร้างก่อนเสมอ โฮมเดคมีแบบบ้านชั้นเดียวสไตล์บ้านพักตากอากาศท่ามกลางธรรมชาติพร้อมแปลนบ้านมานำเสนอเป็นไอเดียค่ะ บ้านหลังนี้มีชื่อว่า Casa Mecano ตั้งอยู่ที่ประเทศคอสตาริก้า ถูกออกแบบโดยสถาปนิคชื่อ Robles Arquitectos ได้ออกแบบโครงสร้างบ้านให้มีกลไกในการปรับตัวเข้ากับสภาพแวดล้อม โดยมีระบบอัตโนมัติมาควบคุมระดับที่เหมาะสมของการระบายอากาศตามธรรมชาติผ่านระบบหน้าต่างกับระบบสายพาน และสามารถปรับตำแหน่งความเอียงของหน้าต่างด้วยมือได้อีกด้วย เพื่อกันแสงตกกระทบหรือแสงสะท้อนจากดวงอาทิตย์ ป้องกันฝนสาดเข้าภายในบ้าน เป็นบ้านแนวคิดที่คำนึงถึงสภาพแวดล้อมและคุณภาพอากาศภายในบ้าน ด้วยเป้าหมายที่จะสร้างฟังชันก์การใช้งานที่หลากหลายในพื้นที่ที่เล็กที่สุด
ตามไปดูแบบบ้าน แปลนบ้าน และระบบอัตโนมัติของบ้านหลังนี้ ด้านล่างนี้เลยค่ะ !

แปลนบ้าน

แปลนบ้าน

แปลนบ้าน

แปลนบ้าน

แปลนบ้าน

แปลนบ้าน

แปลนบ้าน

แปลนบ้าน

แปลนบ้าน

แปลนบ้าน

แปลนบ้าน

แปลนบ้าน

แปลนบ้าน

แปลนบ้าน

แปลนบ้าน

แปลนบ้าน

แปลนบ้าน

แปลนบ้าน

แปลนบ้าน

แปลนบ้าน

แปลนบ้าน
❤❤❤❤❤❤❤❤❤❤❤
ตัวอย่างแปลนบ้านอื่นๆ

แปลนบ้าน

แปลนบ้าน

แปลนบ้าน

แปลนบ้าน
ขอบคุณ homedsgn.com, บ้านพิศาล พุทธบูชา30
